S104 Dvosobni stan + dnevni boravak
Pošalji upit
098/259-057
Kvarnerska vila - Kastav
Prvi kat
S104 Dvosobni stan + dnevni boravak

Kvarnerska vila - Kastav
prodaja@kvarnerska-vila.com098/259-057
S104 Dvosobni stan + dnevni boravak
Etaža: Prvi kat
Tip stana: Dvosobni stan + d.b.
Ukupna površina: 75,00 m2
Cijena:
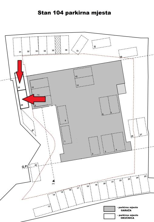
Broj i lokacija parkirnih mjesta: 2 (29 - 30)
Broj i lokacija spremišta: 1 (18)
1 | Dnevni boravak, kuhinja i blagovaonica | 39,30 m2 |
2 | Spavaća soba | 11,90 m2 |
3 | Spavaća soba | 10,80 m2 |
4 | Kupaonica | 5,90 m2 |
5 | Spremište (6,00 x 0,50) | 1,30 m2 |
6 | Terasa | 5,80 m2 |
Dvosobni stan + dnevni boravak na Rešetarima, 75,00 m2, pogled na more. Novogradnja.



Lokacija nekretnine na mapi
Detaljni opis projekta Kvarnerska vila
Konstrukcija
- temeljenje je izvedeno na temeljima dimenzija 150 x 85 cm
- nosiva konstrukcija objekta je armirano betonska
- AB zidovi nadzemnih etaža od 20 i 25 cm
- AB međukatne stropne ploče su monolitne, a debljine ploča iznose 25 i 20 cm
- fasadni zidovi su armirano betonski debljine 20 cm
- pregradni zidovi unutar stanova su zidani siporexom debljine 10 cm i obostrano su žbukani
- zidovi između stanova su armirano betonski debljine od 25 cm ili zidani siporexom oznake ZBZ 25/20* koji osigurava zvučnu izolaciju
- zidove između stanova i negrijanog hodnika čine zidovi zidani siporexom debljine od 25 cm ili AB zidovi debljine 20 cm te su s vanjske strane obloženi kamenom vunom 7.5 cm i duplim gispkarstonskim pločama
- konstruktivna (katna) visina stambenog dijela je 268 cm
- svjetla visina (visina od gotovog poda do stropa) je u stambenom dijelu 255 cm
Fasada
- fasada stambenog dijela kombinacija je toplinsko fasadnog sustava
- zidovi toplinske fasade oblažu se izolacijskim pločama od stiroporom debljine 10 cm
- toplinski fasadni sustav izvodi se sistemom Baumit sa završnim slojem završno-dekorativne žbuke na mineralnoj osnovi
Hidroizolacija i krov
- hidroizolacija podzemnog dijela objekta bitumenskom ljepenkom V4 u dva sloja
- krov se izvodi kao ravni. Slojevi na krovu su parnabrana, beton u padu od perlita prosječne debljine 8 cm, kamene vune 12 cm i SIKAPLAN TPO folije
- hidroizolacija sanitarnih čvorova i loggia izvodi se polimer-cementnim hidroizolacijskim premazom proizvođača PCI
Vanjska stolarija
- vanjska stolarija stambenog dijela izrađena je iz PVC profila sa aluminijskom jezgrom I klase s prekinutim termičkim mostom tip GAELAN 9000 sa 6 komora i 3 brtve opremljeni okovom MACO multi matic okovima.
- jednobojno plastificirana bijela.
- ostakljenje troslojnim izo low-e staklom.
- aluminijske rolete punjene poliuretanom bijele boje.
- rolete se pokreću pomoću ugrađenih elektromotora i tipkala.
- vanjske prozorske klupčice su aluminijske i debljine su od 2 mm.
- unutarnje prozorske klupčice su kamene i debljine su od 2 cm.
- ulazna vrata u stubišni prostor su izrađena iz aluminijskih profila I. klase s prekinutim termičkim mostom tip WICONA-WICLINE 75.
Zajednički dijelovi
- stubište je opremljeno osobnim dizalom
- u hodnicima su visokokvalitetne gres keramičke pločice
- na stepeništima i podestima je visokokvalitetna gres keramika
- ograda i rukohvat na stubištima od pocinčanog željeza bojano kvalitetnim lakom
Spremišta
- zidovi spremišta izrađuju se od gipskartonskih ploča
- spremišta imaju prirodnu ventilaciju
Parking
- 27 parkirnih mjesta na okućnici u vlasništvu investitora
- 13 parkirnih mjesta u zgradi
Stolarija
- protuprovalna ulazna vrata u stanove s obuhvatnim štokovima. Vrhunski protuprovalni cilindar u "sistemu", jedan ključ otvara ulazna vrata od zgrade i vrata od stana proizvođača Dierre
- vrhunska unutarnja stolarija s obuhvatnim dovratnikom
Podovi
- svi podovi u stambenom dijelu izvode se po sistemu plivajućeg poda na način da se cementna glazura izvodi na elastificiranom i ekstrudiranom polistirenu ukupne debljine polistirena od 5 cm
- podovi soba, dnevnog boravka i blagovaonice obloženi su gotovim troslojnim parketom širine lamela 15 cm, debljine 14 mm, tvornički lakiranog UV mat lakom koji se lijepi na glazuru
- podovi kuhinja i hodnika obloženi su visokokvalitetna gres keramikom
- podovi WC-a, kupaonice i izbe obloženi su keramičkim pločicama I klase gress ratificirane
- terase i lođe obložene su protukliznim keramičkim pločicama I. klase otpornim na atmosferske utjecaje
- podovi zajedničkih komunikacija, hodnika i stubišta oblažu se gres protukliznim keramičkim pločicama I klase
Zidovi
- armirano betonski zidovi strojno su žbukani, gletani i ličeni disperzivnom bojom
- pregradni zidovi unutar stanova su od siporexa, gletani i ličeni disperzivnom bojom ili obloženi keramikom
- obloge u stubištima i stanovima od gipskartonskih ploča izvode se od dvostrukih običnih ili vlagootpornih ploča koje su punoplošno gletane i ličene disperzivnom bojom ili obložene keramikom
- zidovi sanitarnih čvorova obloženi su keramičkim ratificiranim pločicama I. Klase
Stropovi
- stropovi se izvode u glatkoj oplati, a nakon toga su gletani i ličeni disperzivnom bojom
Sanitarni čvorovi
- sanitarna oprema je visoke kvalitete renomiranih proizvođača
- tuš kade Kolpasan sa staklenom tuš kabinom
- konzolne sanitarije rimless i softclose daska za WC
- ugradbeni montažni vodokotlići Geberit
- jednoručne armature Grohe
Elektroinstalacije
- električna brojila za stanove smještena su u etažnim ormarićima na stubištu svakog kata
- spremišta, lift i hodnici vezani su na zasebno brojilo zajedničke potrošnje
- zgrada je opremljena sustavom za odimljavanje stubišta
- u zajedničkim prostorima izvodi se protupanična rasvjeta
- u zajedničkim prostorima ugrađuje se LED rasvjeta, a u hodnicima rasvjeta se pali putem senzora
- u kupaonici i na loggiama stana ugrađuje se LED rasvjeta sa zaštitom od vlage
- svaki stan ima svoj razdjelnik stana za jaku struju i razdjelnik za slabu struju (komunikacijski ormarić)
- svaki stan ima portafon
- do komunikacijskog ormarića stana polažu se optički kabel, U/FTP kabel Cat.6, koaksijalni bakreni kabeli za zajednički antenski sustav i prazna instalacijska cijev za budući priključak kabelske televizije
- utičnice i prekidači tip TIM ČATEŽ
- u svim sobama predviđene su utičnice jake struje, telefonsko-računalne utičnice RJ45 i antenske utičnice u dnevnim boravcima
- elektrooprema kuhinje: izvod za stropno svjetlo, izvod za svjetlo iznad radne plohe, utičnica za ploču za kuhanje, utičnica za pećnicu, utičnica za hladnjak, utičnica za perilicu, utičnica u pojasu iznad radne plohe te izvod za napu
- elektrooprema kupaonice: ugrađena stropna LED rasvjeta, utičnica za perilicu rublja, utičnica pored ogledala sa zaštitom od vode, izvod struje za nadsvjetlo iznad umivaonika, izvod struje za ventilator
- elektrooprema u hodniku: izvod za stropno svjetlo, razdjelnik stana za jaku struju, komunikacijski ormarić, utičnica, portafon
- Svaki stan ima pripremu za postavu i montažu solarnih panela na krovu snage 2 kw
Instalacije vodovoda i kanalizacije
- građevina se priključuje na javnu mrežu vodoopskrbe i odvodnje
- mjerenja hladne vode predviđeno je za svaki stan zasebno preko sekundarnog vodomjera smještenog u vodomjernoj šahti u okolišu
- glavni ventil vode nalazi se u svakom stanu
- instalacija vode izvodi se sa Alupex vodovodnim cijevima
- kanalizacijske vertikale izvode se troslojnim niskošumnim PP cijevima
- odvod kondenzata sa split jedinica za režim grijanja i hlađenja
- priključci za perilicu rublja i perilicu posuđa
- izvedba unutarnje hidrantske mreže
Grijanje i hlađenje
- grijanje je predviđeno split sistemom s vanjskom jedinicom Mini VRF 8 kw i tri unutrašnje jedinice proizvođača BOSCH
- izvodi se dvocijevno radijatorsko grijanje
- za grijanje sanitarne vode predviđena je ugradnja električnih bojlera Bosch 80 L
Ventilacija
- sve prostorije orijentirane na fasadu ventiliraju se prirodno preko vrata i prozora
- kuhinje i kupaonice smješteni u unutrašnjosti stana ventiliraju se prisilno putem ventilacijskih kanala
- ventilacija kuhinja (nape) izvodi se na zasebnu ventilacijsku cijev za svaku kuhinju
- ventilacija kupaonica izvodi se na zasebnu ventilacijsku cijev za svaku kupaonicu
- sve ventilacijske cijevi opremljene su protupožarnim zaklopkama